一、A1570漸開線圓柱齒輪減速機概述
QJ系列減速器適用于起重機各運行機構,也廣泛用于運輸、冶金、礦山、化工、輕工等各種機械設備的傳動機構中。
二、特點
(1)減速比范圍寬,公稱速比10~20。
(2)機械傳動效率高;二級達96%,三級達94%。
(3)運轉平衡,噪音低。
(4)由于釆用了42CrMo、35CMo經鍛造調質處理,分別制作齒輪軸和齒輪,所以使用壽命長,承載能力高。
(5)易于拆檢,易于安裝。
三、適用條件
(1)齒輪圓周速度不大于16m/s。
(2)高速軸轉速不大于1000r/min。
(3)工作環境溫度為-40℃~45℃。
(4)可正反兩方向運轉。
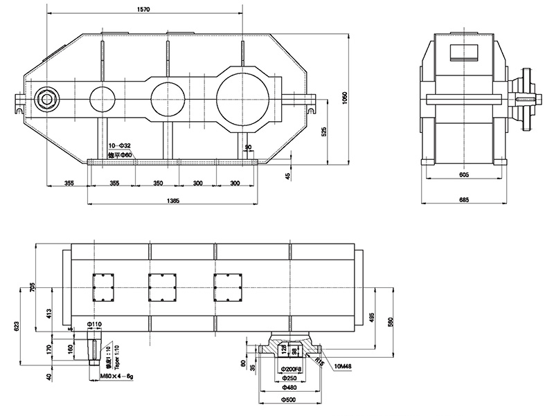
四、外形及安裝尺寸

五、A1570速比,輸入轉速,輸入功率關系表
